HOME ADDITION
HOME ADDITION
This modern sunroom addition was designed to extend the home’s living space and create a seamless indoor-outdoor connection for family enjoyment.
ASHBURN, VA
VIEW PROJECT
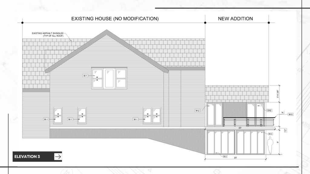
Design Brief
Design Brief
This modern sunroom addition was designed to extend the home’s living space and create a seamless indoor-outdoor connection for family enjoyment. Featuring sleek black-framed windows that flood the room with natural light, the space feels open, airy, and connected to the outdoors. The flooring is finished with modern ceramic tiles that add texture and elegance, while stylish built-in cabinetry offers both function and aesthetic appeal. Outside, the adjacent pool area is surrounded by composite decking, enhancing the contemporary look and providing a durable, low-maintenance surface that ties the entire space together beautifully.
Full Design
Full Design
This full design project seamlessly unites the sunroom and outdoor pool area into one cohesive modern living environment. Large black-framed windows bring abundant natural light and a sense of openness, while a refined neutral palette and modern ceramic flooring create visual continuity throughout. The built-in cabinetry adds both style and functionality, maintaining clean lines and a relaxed atmosphere ideal for daily living. Outside, the composite decking complements the interior finishes, extending the aesthetic outdoors with a durable, low-maintenance surface. Together, these elements form a harmonious blend of interior and exterior design that enhances family connection, comfort, and contemporary elegance.
Renders
Renders
The 3D renderings provided a realistic preview of the sunroom addition, capturing the abundance of natural light and the clean, modern aesthetic. The visuals highlighted the contrast between the dark window frames and the light interior finishes, as well as the elegant ceramic flooring and stylish cabinetry. The render also showcased how the composite decking surrounding the pool complements the sunroom's architecture, helping the client envision the extended space as a unified, modern retreat for family life and entertainment.
Drawings



Drawings



