When embarking on any construction or renovation project, one of the essential components of the design process is the elevation drawing. These drawings are an invaluable tool for architects, builders, and designers, providing a clear and detailed representation of the building’s exterior. But what exactly are elevation drawings?
What Are Elevation Drawings?
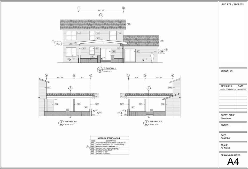
Elevation drawings are two-dimensional representations of a building’s facade or exterior views. They show the height, width, and other dimensional details of a structure from the outside, essentially illustrating what the building will look like once completed. These drawings are created from a specific viewpoint—front, back, left, or right—depending on which side of the building is being illustrated.
Unlike floor plans, which focus on the interior layout, elevation drawings give a vertical view of the building’s structure, providing key information about the design, proportions, and materials.

The Importance of Elevation Drawings
Elevation drawings serve several important purposes throughout the construction process:
- Visualizing the Design: Elevation drawings help both clients and architects visualize the final product. They offer a clearer understanding of how the building will look in relation to its surroundings, materials, and aesthetic design.
- Guidance for Builders: Contractors rely on these drawings to understand the dimensions, placement of windows and doors, and other architectural features. It ensures that the building is constructed according to the design specifications.
- Planning and Approvals: Elevation drawings are essential when submitting building plans for approval from local authorities. They demonstrate compliance with zoning codes, height restrictions, and other building regulations.
- Material Selection: These drawings can indicate which materials will be used for different parts of the building, such as the exterior walls, roofing, or windows, which helps in budgeting and procurement.
Types of Elevation Drawings
There are generally four main types of elevation drawings, based on the direction of the view:
- Front Elevation: This shows the view of the building’s main entrance.
- Rear Elevation: Represents the backside of the building.
- Side Elevations: These show either the left or right side of the building.
- Sectional Elevation: This type of drawing combines an elevation view with a sectional view to show the internal structure in relation to the external facade
Elevation drawings are much more than just a representation of a building’s exterior; they are a critical tool that guides the construction process, helps communicate design ideas, and ensures that all aspects of the building meet the client’s vision and regulatory requirements. If you are building your dream home, these drawings are an essential part of making sure everything comes together seamlessly.
