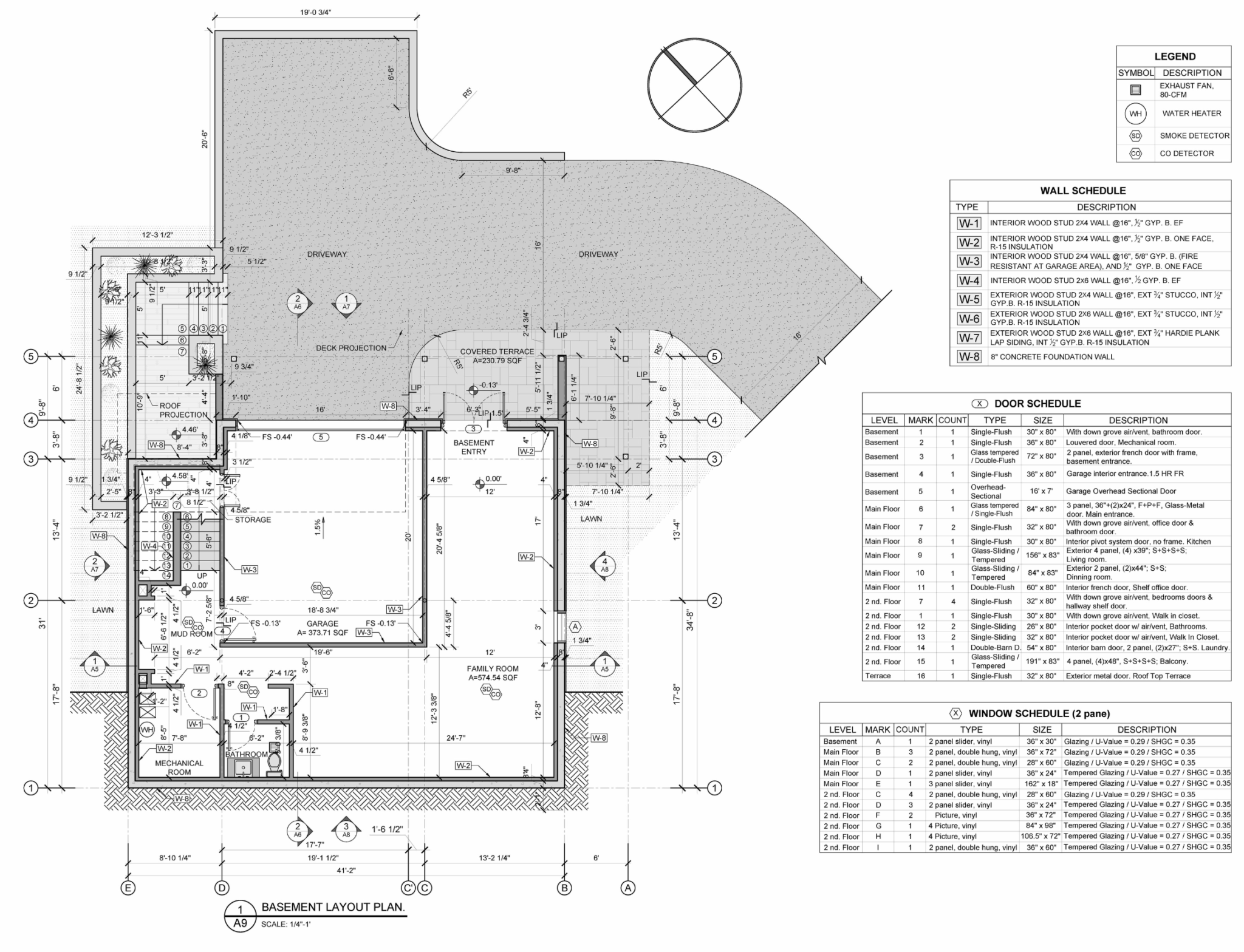
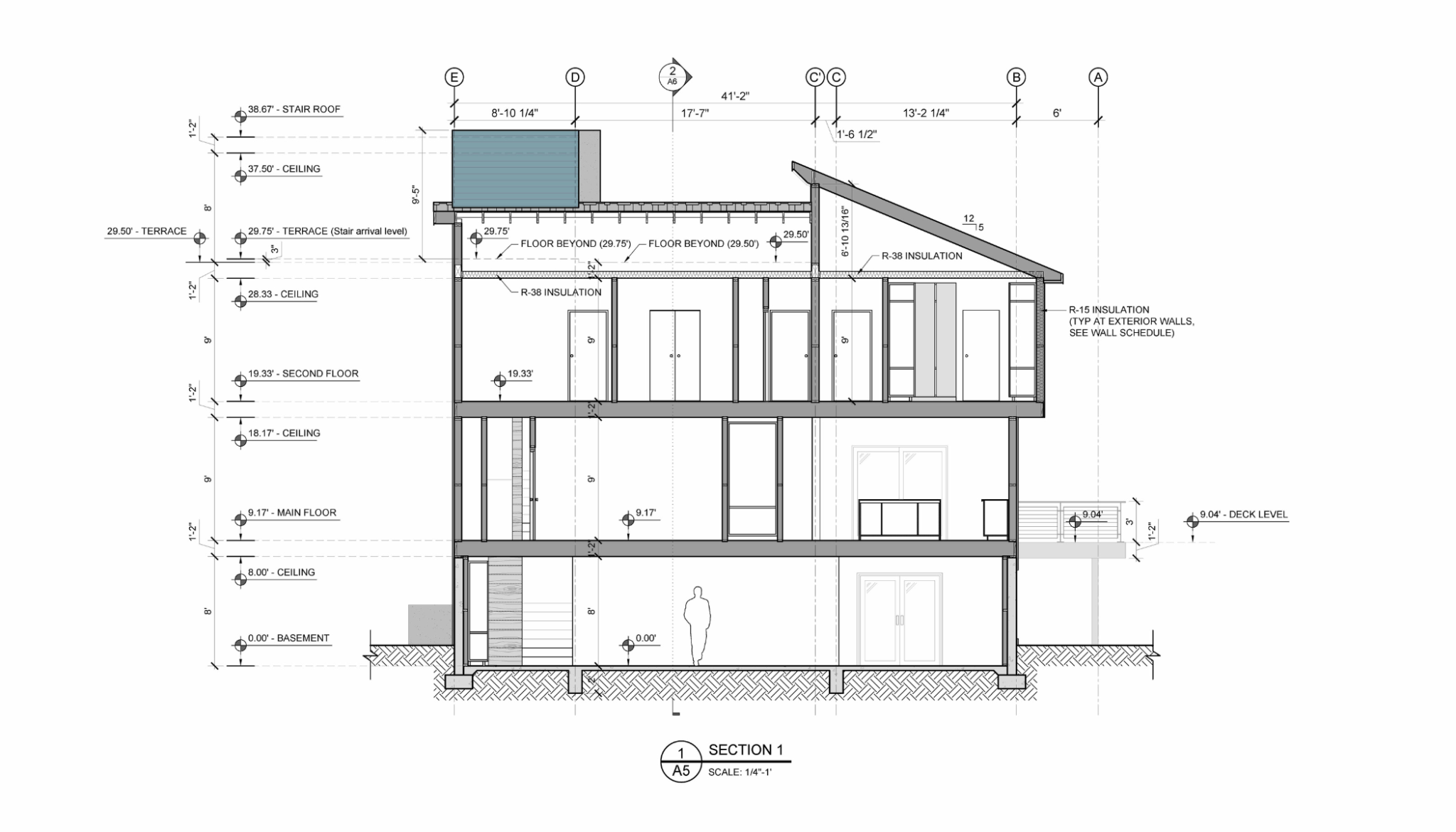
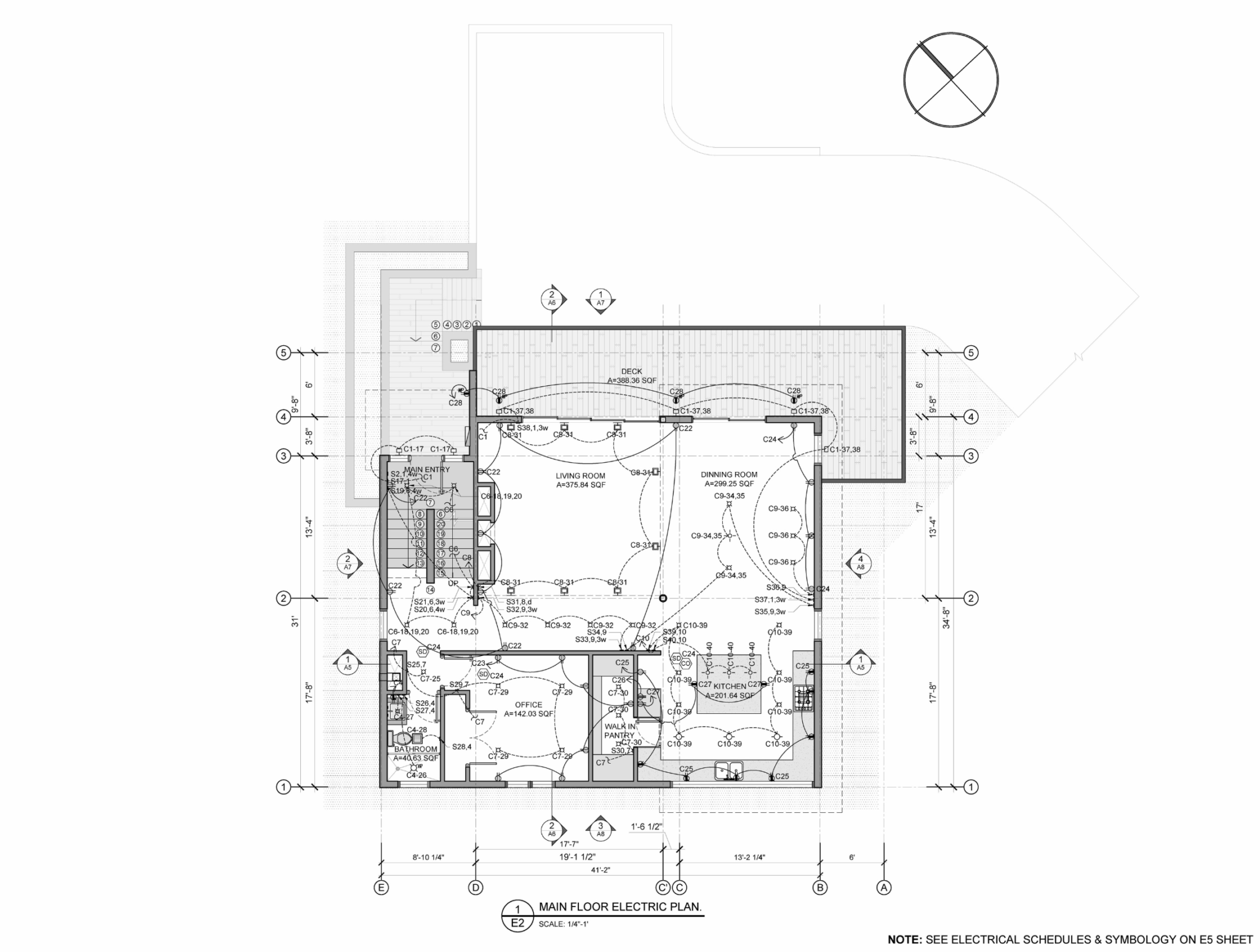
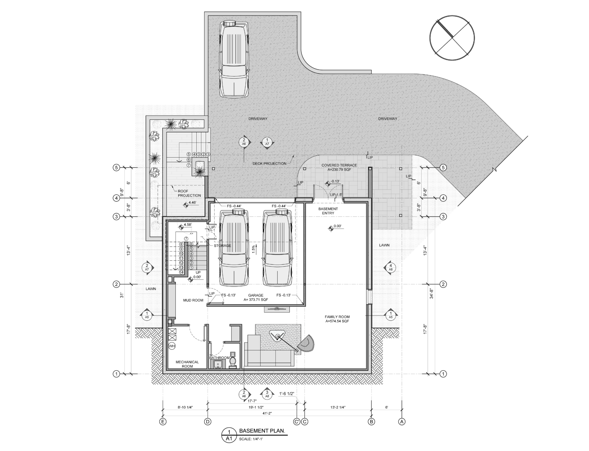
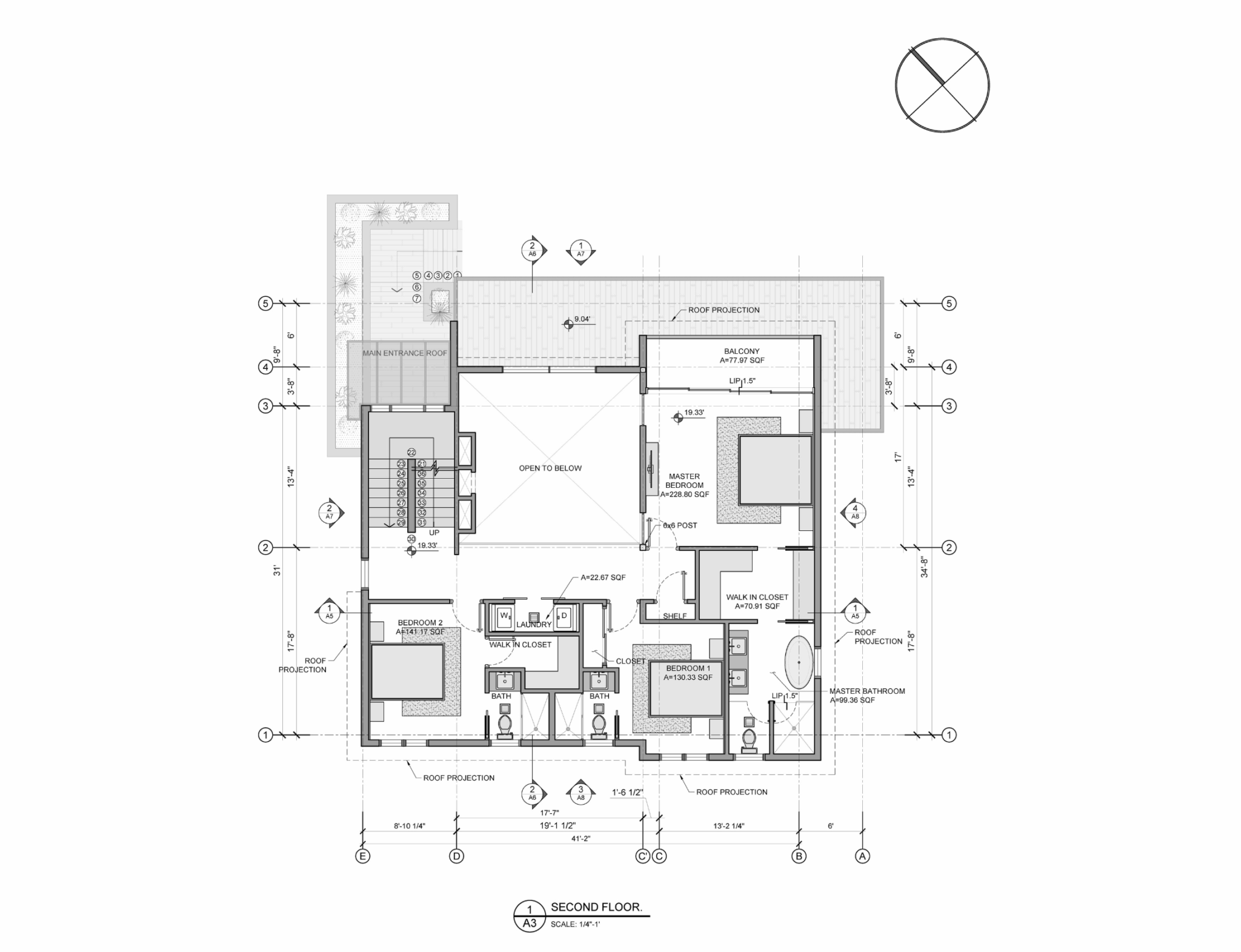
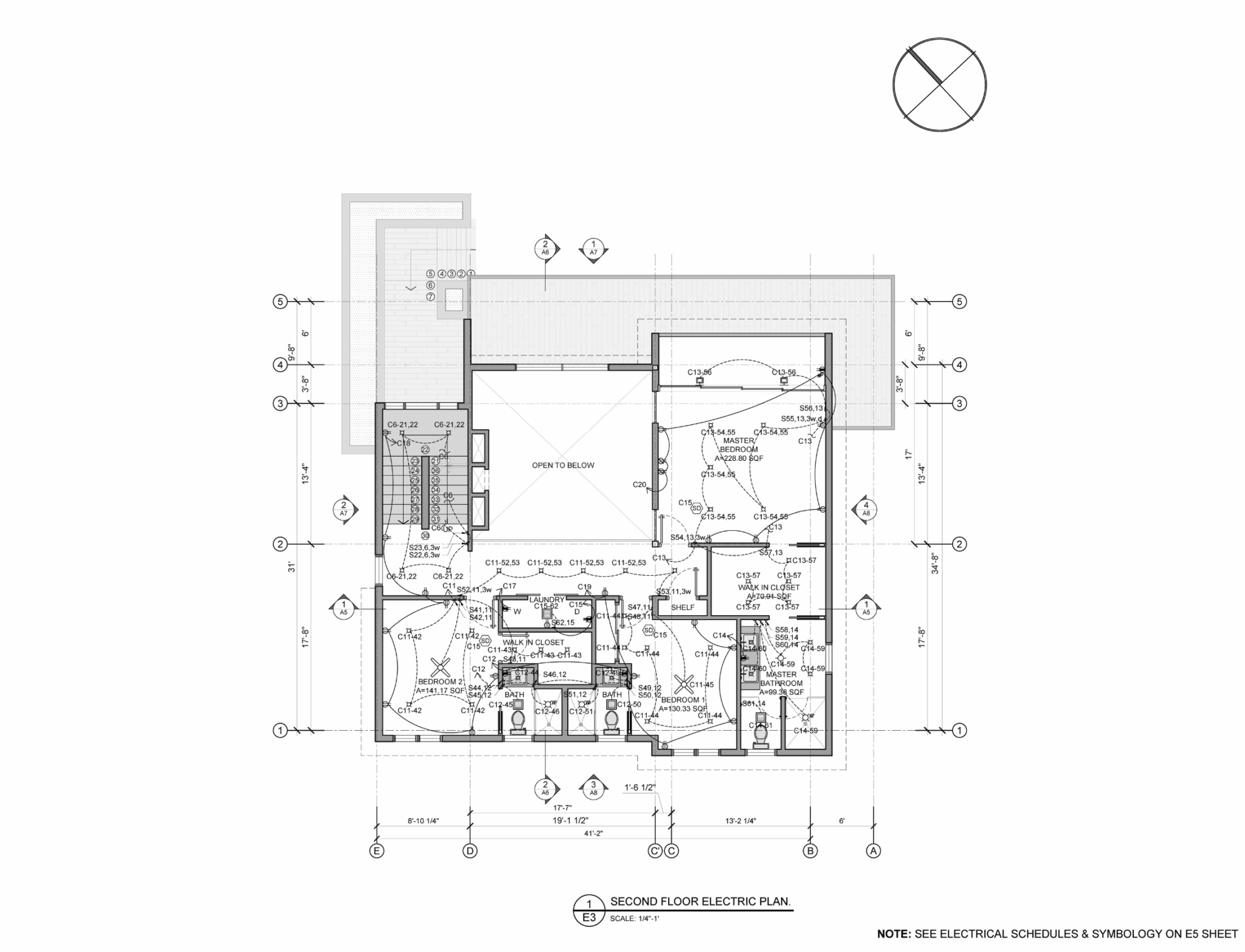
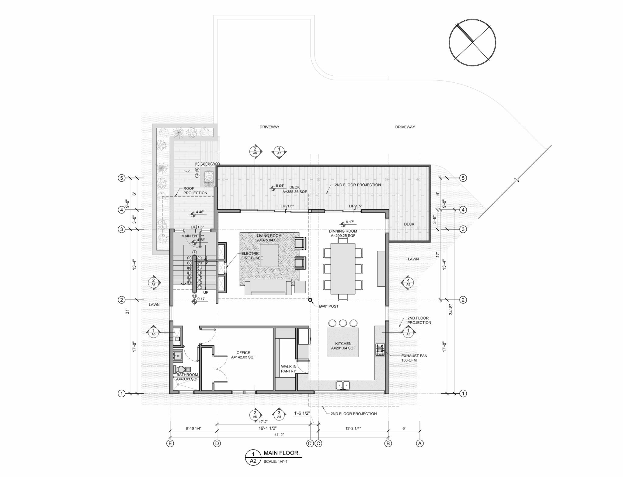
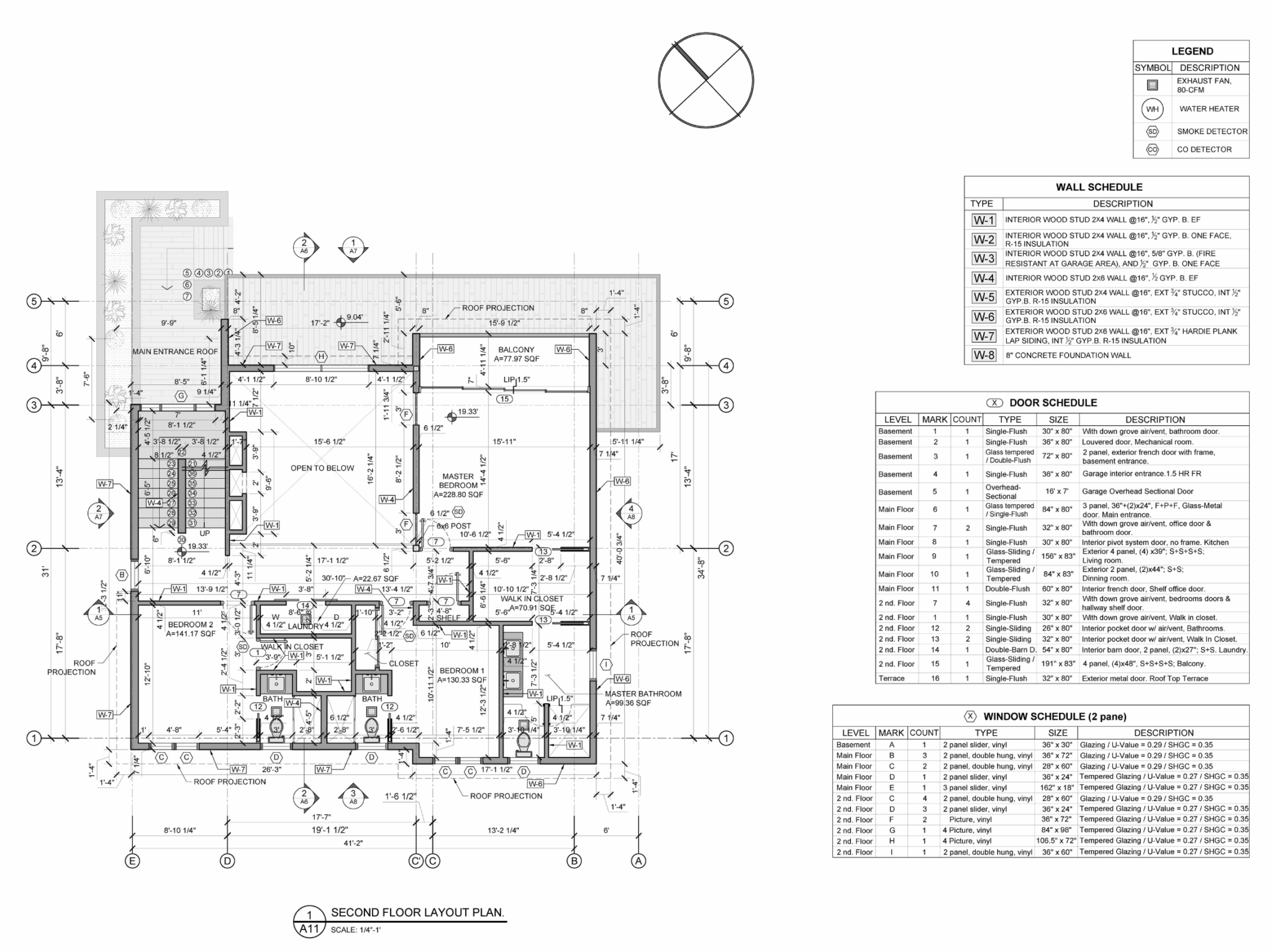
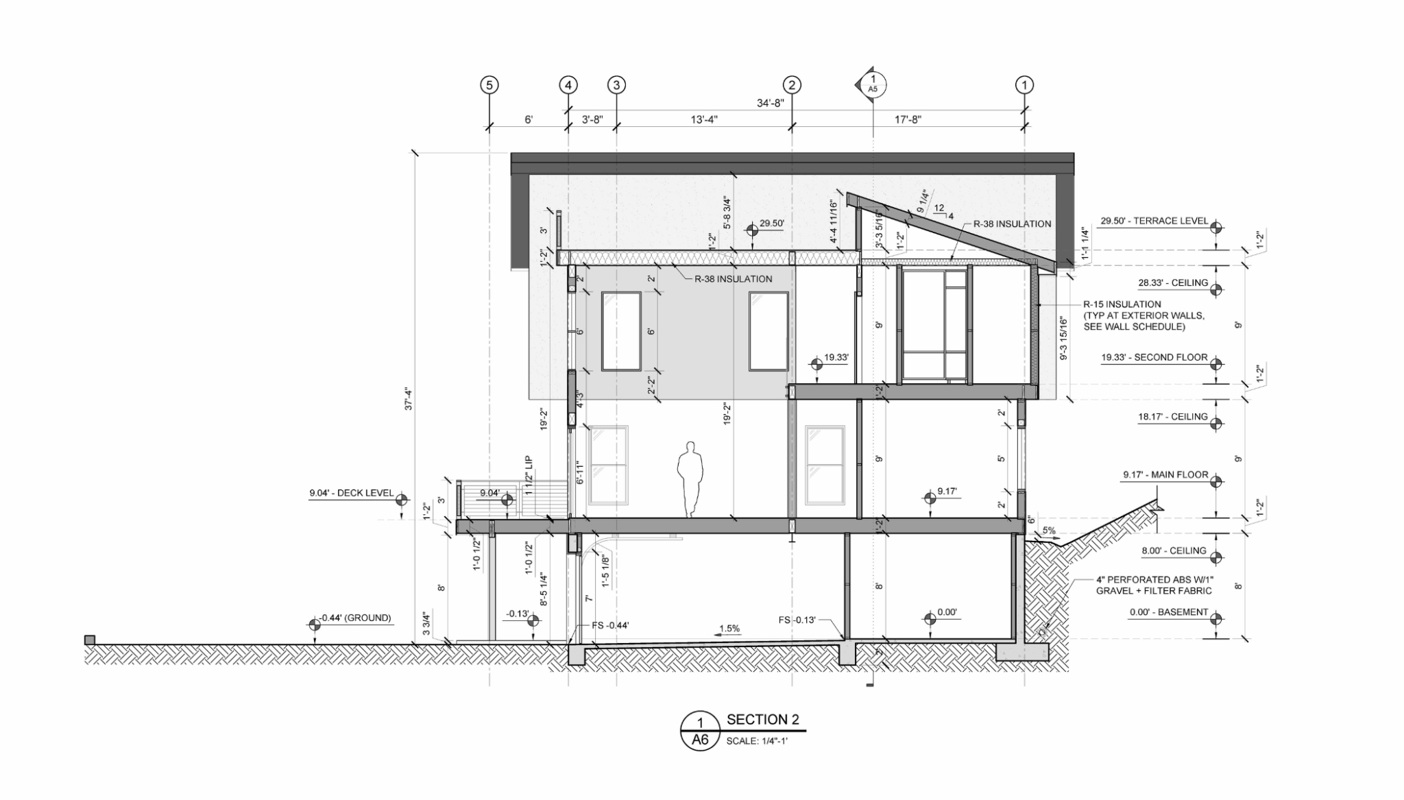
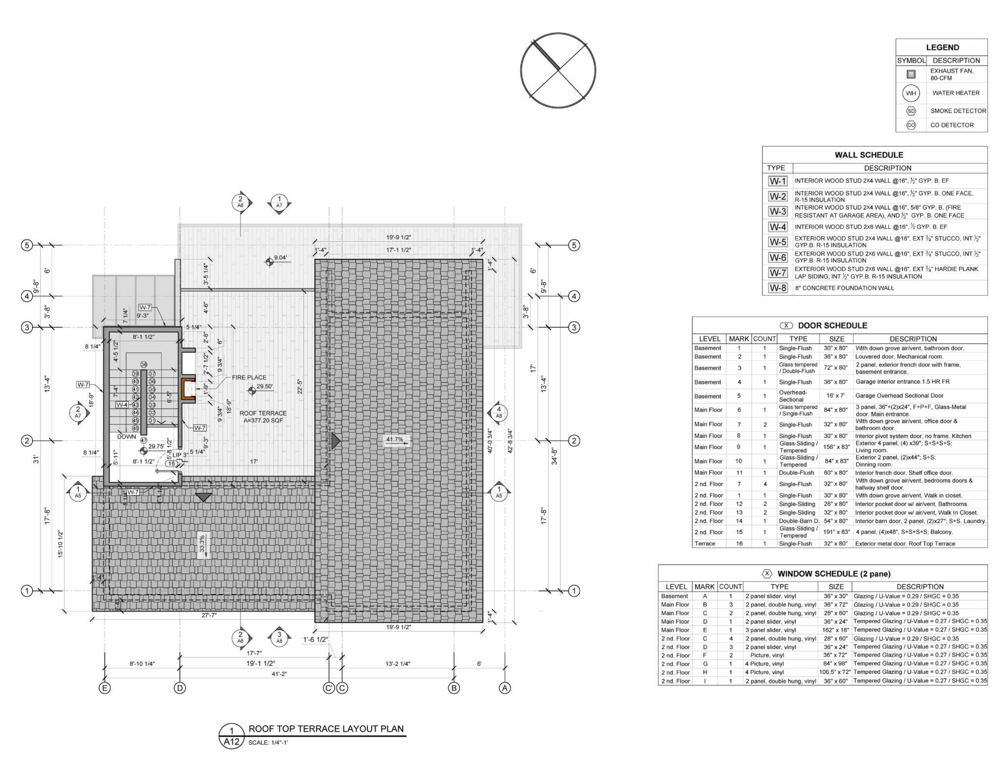
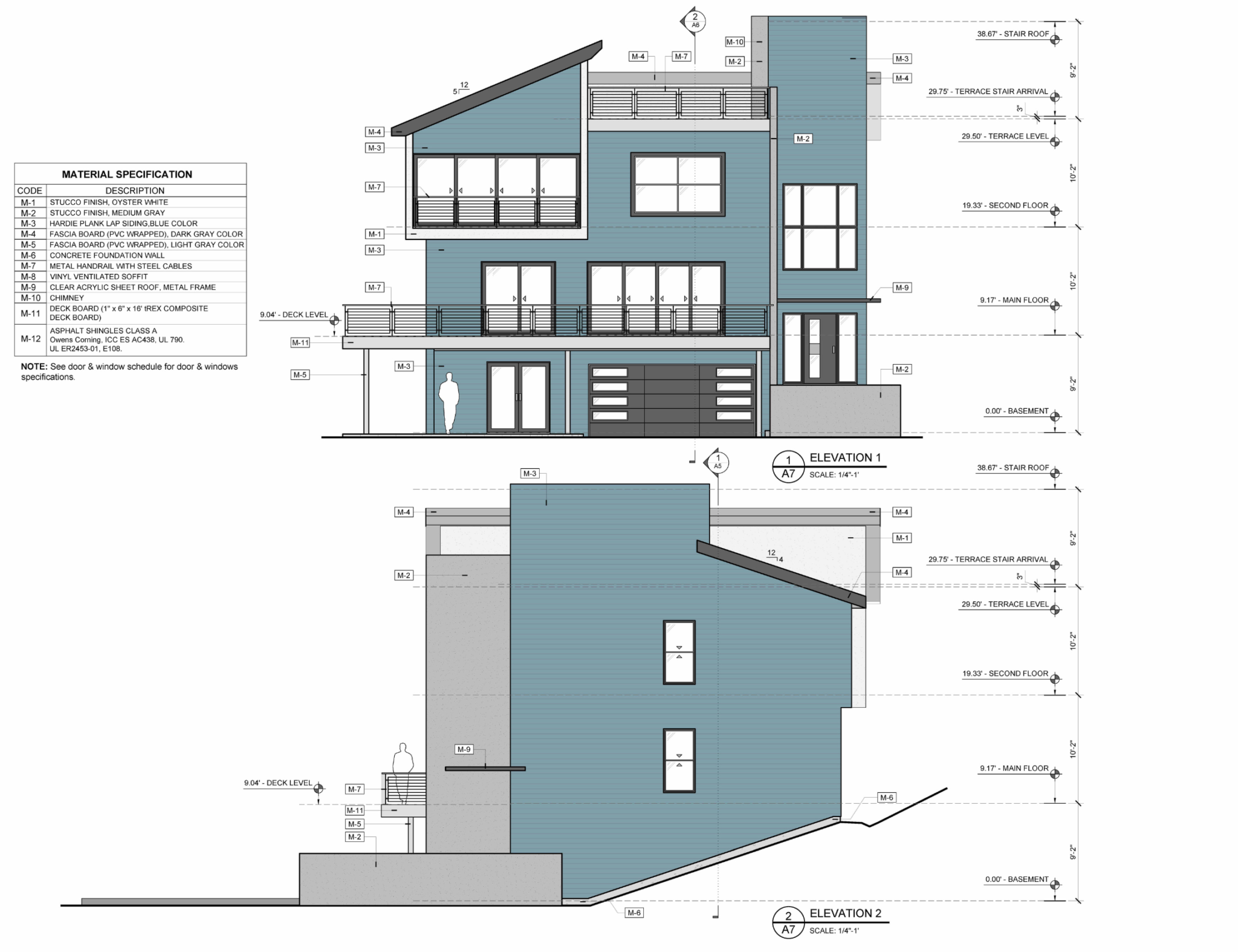
This new construction project, situated on a sprawling 20-acre lot, features a contemporary mountain home designed to blend seamlessly with its natural surroundings. The modern architectural style is highlighted by clean lines, large windows, and an open-concept layout that maximizes light and space.
The exterior is elegantly finished with Alucobond panels, european siding norwegian board, and stucco, providing a sleek, durable, and sophisticated look.
This project combines contemporary aesthetics with high-performance materials, creating a stunning and functional living space that stands out in any setting.