HOME ADDITION

HOME ADDITION

This home addition was designed to expand the livable space while seamlessly blending with the original architecture.

HAYMARKET, VA

Design Brief

Design Brief

This home addition was designed to expand the livable space while seamlessly blending with the original architecture. The result is a cohesive, spacious environment that adds both comfort and long-term value.

Full Design

Full Design

This full design project expands the home’s livable space while maintaining a seamless connection with the original architecture. The addition was conceived to enhance comfort, functionality, and long-term value, creating a harmonious balance between old and new. Inside, the bright and inviting interior design emphasizes continuity through thoughtful material selection and a cohesive palette that unites the spaces. The result is a refined extension that feels naturally integrated—modern yet timeless, offering warmth, openness, and effortless flow throughout the home.

Renders

Renders

The 3D renderings played a crucial role in visualizing the home addition before construction began. They showcased how the new space would connect with the existing structure, both inside and out, allowing the client to see proportions, finishes, and lighting in real context. This step helped ensure alignment between vision, design, and final execution

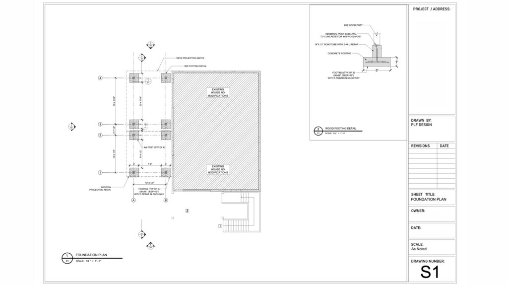
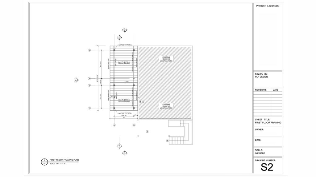
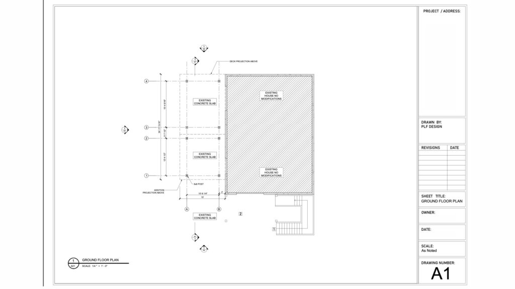
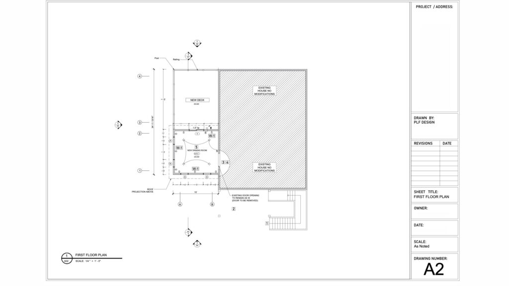
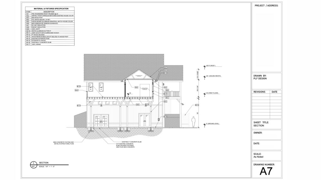
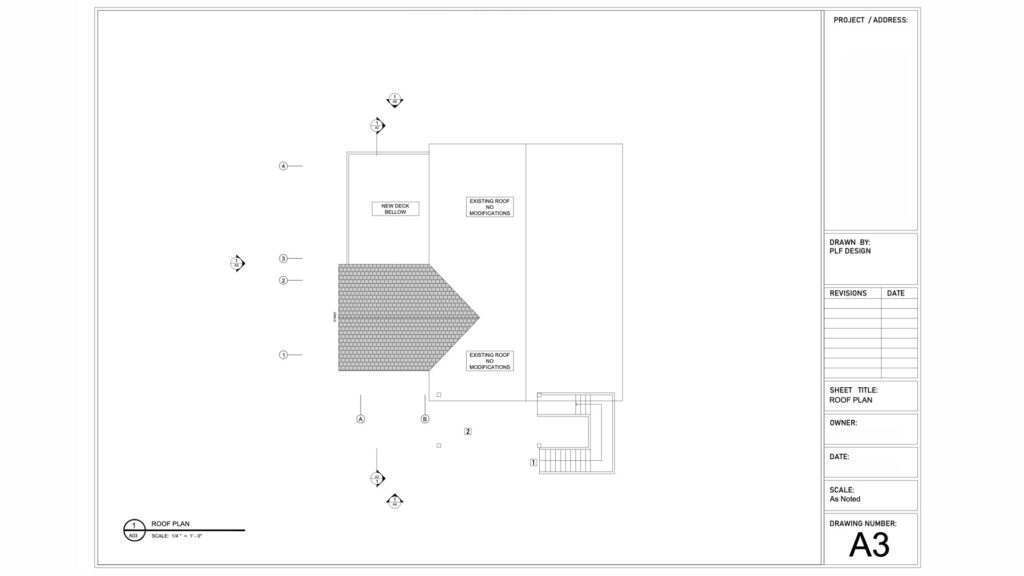
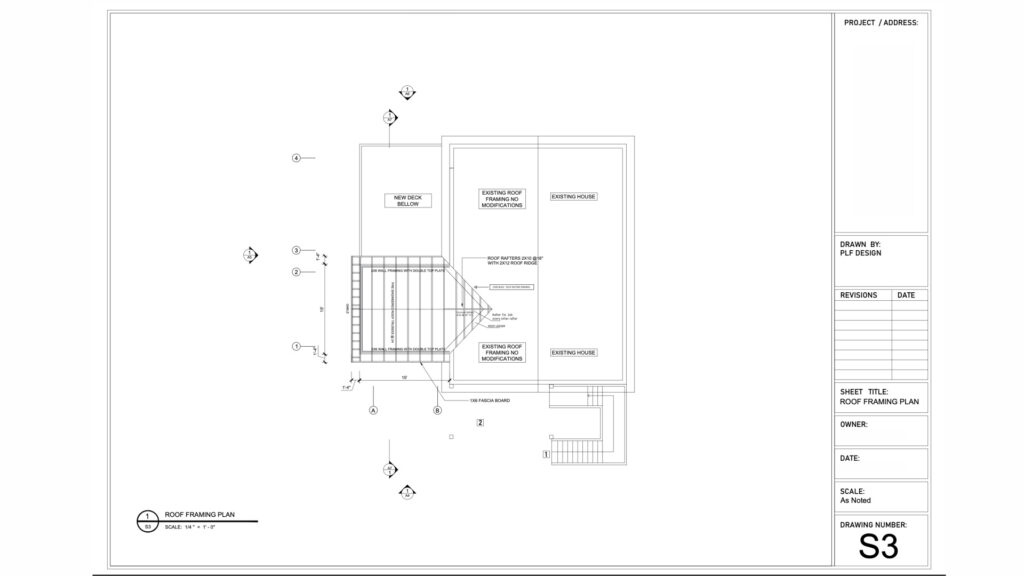
Drawings

Drawings

Drawings

Scroll to Top